HOME >> 物件を借りたい方(アパート・マンション) >> 物件情報
アパート・マンション
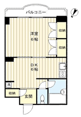
M-570
| 所在地 | 駅名 | 徒歩 | 賃料 管理費 |
礼/敷 | 間取り | 面積 | 構造 | |
|---|---|---|---|---|---|---|---|---|
| 文京区本駒込3丁目 | 南北線 本駒込駅 |
8分 | 95,000円 5,000円 |
1/1 | 1DK | 32.8u | 鉄筋コン 1/4階建て |
|
|
南向き・角部屋 2人入居相談♪ エアコン/ウォシュレット/CATV/光ファイバー/外壁タイル張り/閑静な住宅地/照明付/キッチンに窓/クロゼット2ヶ所/3駅以上利用可/駅徒歩10分以内/南面バルコニー/BS/大丸ピーコック文京グリーンコート店(スーパー)まで638m/肉のハナマサ動坂店(スーパー)まで801m/トップ田端銀座店(スーパー)まで909m/コミュニティ・ストア都立駒込病院店(コンビニ)まで460m/ハックドラッグ文京グリーンコート薬局(ドラッグストア)まで637m/ユニバーサルドラッグ動坂店(ドラッグストア)まで688m/都営三田線 千石駅 徒歩10分/JR山手線 駒込駅 徒歩10分 |
||||||||
