HOME >> 物件を借りたい方(アパート・マンション) >> 物件情報
アパート・マンション
M-807
| 所在地 | 駅名 | 徒歩 | 賃料 管理費 |
礼/敷 | 間取り | 面積 | 構造 | |
|---|---|---|---|---|---|---|---|---|
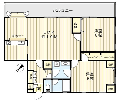
| 文京区西片2丁目 | 南北線 東大前駅 |
4分 | 260,000円 込み |
1/2 | 2LDK | 84.8u | 鉄骨 2/3階建て |
|
|
誠之小校区 定期借家10年/バストイレ別/エアコン3基/フローリング/室内洗濯置/陽当り良好/シューズボックス/システムキッチン/角住戸/温水洗浄便座/洗面所独立/洗面化粧台/駐輪場/閑静な住宅地/3口以上コンロ/照明付/グリル付/ウォークインクロゼット/3沿線以上利用可/駅徒歩5分以内/LDK18畳以上/都市ガス/ワイドバルコニー/通風良好/まいばすけっと白山1丁目店5m/国立東京大学農学部まで607m/都営三田線 白山駅 徒歩8分/都営三田線 春日駅 徒歩11分 |
||||||||
