HOME >> 物件を借りたい方(オフィス) >> 物件情報
オフィス
O-041
旧白山通りに面しています!
☆駅まで徒歩1分☆ ☆オートロック付き☆ ☆1フロア1世帯☆
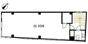
| 物件概要 | |
|---|---|
| 所在地 | 東京都文京区本駒込2 |
| 交通 | 都営三田線 千石駅 徒歩1分 |
| 構造 | 鉄骨 3階/3階建て |
| 面積 | 82.41㎡(24.93坪) |
| 賃貸条件 | |
|---|---|
| 賃料 | 180,000円 税別 |
| 費用 その他 |
礼金1ヶ月 保証金10ヶ月 要損保 入居:即 2年契約 |
|
オートロック/陽当り良好/最上階/2沿線利用可/3駅以上利用可/駅前/南西向き/ビルトインエアコン/温水洗浄便座/ピーコックストア文京グリーンコート店まで475m/ファミリーマート本駒込二丁目店まで75m/どらっぐぱぱす千石駅前店まで289m/オリジン弁当千石店まで61m/文京白山五郵便局まで277m/みずほ銀行駒込支店まで318m/都営三田線 白山駅 徒歩11分/東京メトロ南北線 本駒込駅 徒歩13分 |
